圣宠

加盟流程加盟费用加盟支持品牌优势联系我们

热门搜索: ●开宠物店赚钱吗?费用是多少?圣宠宠物和其他加盟品牌有什么区别?宠物店加盟和自营宠物店的区别?加盟圣宠能得到什么好处?宠物店如何选址?如何选址才能赚钱?

> 最新公告 >

圣宠宠物设计部为高碑店白沟镇店设计宠物店装修效果图

圣宠宠物设计部为高碑店白沟镇店设计宠物店装修效果图

圣宠宠物店高碑店白沟镇店  门头装修设计图
圣宠宠物店高碑店白沟镇店  门头装修设计图
圣宠宠物店高碑店白沟镇店  室内设计图
圣宠宠物店高碑店白沟镇店  室内设计图
圣宠宠物店高碑店白沟镇店 展厅设计图
圣宠宠物店高碑店白沟镇店 展厅设计图
圣宠宠物店高碑店白沟镇店  寄养区设计图
圣宠宠物店高碑店白沟镇店  寄养区设计图
圣宠宠物店高碑店白沟镇店  美容室装修设计图
圣宠宠物店高碑店白沟镇店  美容室装修设计图
圣宠宠物店高碑店白沟镇店  电路图
圣宠宠物店高碑店白沟镇店  电路图
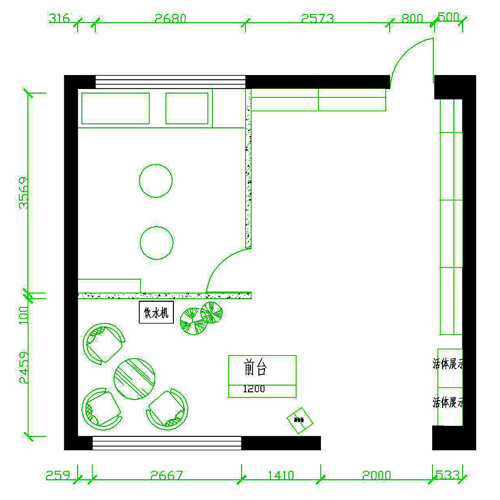
圣宠宠物店高碑店白沟镇店  平面图
圣宠宠物店高碑店白沟镇店  平面图
圣宠宠物店高碑店白沟镇店  隔断图
圣宠宠物店高碑店白沟镇店  隔断图
 
 圣宠宠物精品店
  优势
  投资小、见效快、准盈利、以服务带动产品、以技术带动价格,以专业绑定客户。
  方案Planning
  三带一模式实现垄断区域,店铺客户资源共享、人力资源共享。
  货品资源共享。将品牌连锁影响最大化,实现店铺网络化。
  详细了解:圣宠宠物精品店
  店铺地址:河北省高碑店市白沟镇
  圣宠宠物连锁品牌引领开宠物店创业的朋友一起成功,圣宠宠物期待您的加盟,加盟热线:400-850-1680

上一篇: 北京石景山爱乐动物医院 流浪动物绝育50元起啦

下一篇: 庆祝圣宠宠物(东盛花园店)盛大开业

热门标签:宠物店加盟 宠物用品店加盟 宠物用品批发 宠物美容店加盟 宠物医疗店加盟 开宠物店

    如果您有开店的需求,欢迎您向我们的在线经理咨询!区域经理会帮助您解决难题,帮您成功开店,每天有3000人通过网络向我们咨询。 在线咨询开店,或者直接微信扫描右方二维码咨询客服

相关信息

    connection to 127.0.0.1:9319 failed (errno=111, msg=Connection refused)

店铺设计图

    connection to 127.0.0.1:9319 failed (errno=111, msg=Connection refused)

店面展示

    connection to 127.0.0.1:9319 failed (errno=111, msg=Connection refused)

最新加盟

    connection to 127.0.0.1:9319 failed (errno=111, msg=Connection refused)

加盟问题

    connection to 127.0.0.1:9319 failed (errno=111, msg=Connection refused)

联系我们

  • 加盟热线:
  • 400-656-8818
  • 地址:北京市通州区张家湾镇牛堡屯后街村244号
  • 在线客服:您好,圣宠宠物,请问有什么需要帮助解答的?
  • 您好,圣宠宠物,请问有什么需要帮助解答的?
  • 圣宠官方微信:

    圣宠官方微信

}
圣宠公告